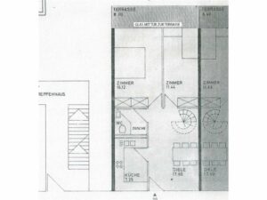
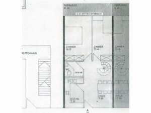
Diese außergewöhnliche 4,5-Zimmer-Maisonette-Wohnung bietet eine einzigartige Kombination aus Raum, Licht und gestalterischen Möglichkeiten. Auf zwei Etagen erleben Sie urbanes Wohnen mit einem Höchstmaß an Flexibilität und Komfort. Die Wohnung besticht durch großzügige Glasfronten in allen Zimmern, drei Balkone mit Grünblick sowie eine ruhige, dennoch zentral gelegene Nachbarschaft in München-Nord.
Mit insgesamt ca. 120 m² Wohnfläche haben Sie die Freiheit, Ihre persönliche Wohnwelt zu gestalten. Die offene Raumaufteilung, die sonnige Dachterrasse mit Markise und der Zugang zu begrünten Innenhöfen schaffen eine ideale Basis für ein modernes und stilvolles Zuhause.
Das Gebäude stammt aus dem Jahr 1972 und wurde stets gepflegt. Die Gasheizung wurde zuletzt 1995 modernisiert. Die Wohnung selbst bietet vielfältige Möglichkeiten, um sie nach Ihren Wünschen und Vorstellungen zu renovieren.
Highlights auf einen Blick:
- 4,5 helle Zimmer, verteilt auf 2 Etagen
- Drei Balkone, darunter eine Dachterrasse mit Markise
- Heller Wohnraum mit offenem Charakter (~30 m²)
- Viel Raum für kreative Gestaltung und Modernisierung
- Blick ins Grüne und ruhige Lage
- Großzügige Fensterfronten mit viel Tageslicht





